Ce site web est optimisé pour les écrans larges, car il s'agit de naviguer sur des plans. Vous pouvez ajuster le zoom avec [Ctrl] [-] et [Ctrl] [+]

Découvrez
notre projet et ses environs
sur rendez-vous

M'inscrire pour venir visiter

L'Hotel CARLIT se transforme en appartements de standing


Pour profiter pleinement de ce site, il est recommandé d'utiliser un écran large plutôt qu'un smartphone car il faut visualiser des plans.
Connectez-vous sur :
https://studimo.fr
pour voir ledit site web.
Merci de votre compréhension.

POUR NOUS CONTACTER :

8 Av. d'Espagne,
66120 Font-Romeu-Odeillo-Via
contact@studimo.fr
06 85 73 57 77

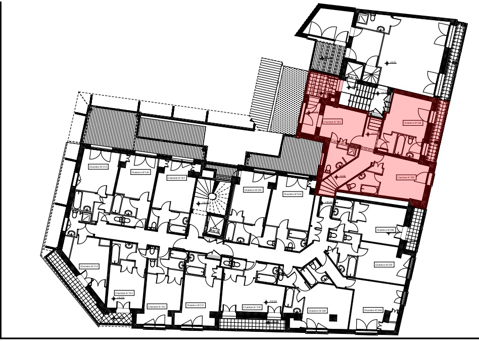
Lot P13

Surface :
:: Logement 61,99 m2 | Loi carrez : 59,72 m2
:: Cellier 3,84 m2
:: Local vélo 4,11 m2
:: Rangement ski 0,54 m2
Surface utile 70,48 m2
:: Terrasse 4,78 m2
:: Balcon 4,37 m2
Surface totale 79,63 m2
Prix de vente en l'état 205 000 € Hors commission d'agence
soit 3433 €/ m2 / Loi carrez
Coût des travaux basé sur l'esquisse: (Frais d'architecte inclus)
(TVA appliquée pour une résidence secondaire soit 20 %)
Rénovation standard : 75 467 € | 1264€ /m² /loi carrez
Rénovation supérieure : 95 491 € | 1599€ /m² /loi carrez
Prix de revient travaux inclus :
Rénovation standard : 280 467 € | 4696€ /m² /loi carrez
Rénovation supérieure : 300 491 €| 5032€ /m² /loi carrez
Livraison prévue : Printemps 2024

L'esprit de notre projet

Notre volonté dans la réalisation de ce projet répond à plusieurs objectifs :

  • S’entourer de véritables professionnels, architecte ou juriste. Les coordonnées de notre notaire vous seront communiquées sur demande, notamment pour les questions relatives au montage en VEFR, une vraie garantie pour l’acheteur...
  • Réaliser une résidence de standing, offrant des lots de grandes surfaces, qui permettent de réaliser l’ appartement de vos rêves.
  • Garantir un projet pérenne sans frais à long terme, pour ce faire, toute l’isolation extérieure est refaite ou améliorée ainsi que la toiture dans son intégralité. La vente en classe C pour l’isolation vous permet après aménagement de vos lots de valoriser en classe B , véritable gage dans le temps et à la revente.
  • Pour parfaire en ce sens, une toiture solaire sera réalisée, d’une capacité de 44,8 kw, une sérieuse option sur la baisse de vos factures d’électricité.
  • Créations de balcons et vastes terrasses pour tous les lots.
  • Tous les lots sont traversants afin de profiter au mieux de l’ensoleillement.
  • Rac à skis, cave privée et garage à vélos privés viennent améliorer le confort d’utilisation.
  • Si vous souhaitez louer votre bien, les appartements de grande surface sont les plus recherchés tant par les touristes que par les sportifs de haut niveau sur des stages de longues durées (Option TVA possible).

Ce projet permet un investissement unique, la situation est exceptionnelle et l’emplacement privilégié. Vous avez la possibilité rare de concevoir l’appartement de vos rêves avec l’accompagnement de l’architecte du projet si vous le souhaitez.

Téléphone : 06 85 73 57 77

Notre architecte :

Notre architecte, Philippe VERMEERSCH, du cabinet COTANEGRE & VERMEERSCH, est implanté depuis 1991 en Cerdagne.

Il possède une solide expérience et une bonne connaissance du tissu local notamment concernant les entreprises et artisans de Cerdagne les mieux à même de répondre à vos exigences.

Sa proximité est pour nous une garantie de sérieux dans le suivi des travaux.

Il est à l'origine des esquisses et des estimations indicatives proposées (travaux et honoraires). Sa mission consisterait à vous accompagner et conseiller dans l’élaboration de votre programme souhaité et de superviser la réalisation de votre projet d’aménagement par les entreprises; ceci en profitant au maximum des aménagements en place et en adéquation avec les contraintes d’une intervention dans un bâtiment existant.

Téléphone : 04 68 04 58 33

Une situation exceptionnelle...